по Липецке
от производителей
Небольшой биокамин, который прекрасно подойдет как встраиваемый вариант для украшения вашего дома. Отлично вписывается в интерьер небольших помещений и комнат.
Дополнительные аксессуары:
Защитное стекло — в случае необходимости убережет ваших домочадцев от открытого огня. А также служит для защиты от попадания различных предметов в огонь. Стекло устанавливается в специальные пазы, заложенные в конструкции камина. Габариты: высота — 10 см, толщина — 0,6 см, ширина — по ширине камеры сгорания.
Декоративное стекло — крепится на всю заднюю стенку очага. За счет своего зеркального отражения, пламя визуально становится в 2 раза больше и кажется, что камин горит еще ярче.
Топливный блок с регулировкой — имеет задвижку для регулировки пламени. Также, с помощью этой задвижки можно полностью погасить пламя. Стандартный блок, идет в комплекте с металлической крышкой, которой можно погасить пламя, накрыв горелку.
Топливный блок биокамина «Модерн 900V» оснащен керамическим волокном, которое впитывает топливо и не дает ему растекаться. Это делает биокамин полностью безопасным.
Биокамин работает на биотопливе. Благодаря относительно небольшой линии огня имеет низкий расход топлива.
Установка и эксплуатация биокамина максимально проста и не требует сложных манипуляций. В комплекте прилагается подробная инструкция по установке и эксплуатации, в которой по пунктам описаны правила безопасного обращения с биокамином.
Встраиваемый биокамин «Модерн 900V» изготовлен из стали и нержавеющей стали, окрашен термостойкой порошковой краской.
Дополнительно можно установить декоративное и защитное стекло, а также топливный блок с регулировкой пламени по высоте горения. Декоративное стекло устанавливается на заднюю стенку биокамина. Такое стекло визуально увеличивает огонь в два раза и делает горение еще более привлекательным. Защитное стекло ставится, чтобы исключить возможность случайных прикосновений с пламенем и попадание в огонь чего-либо.
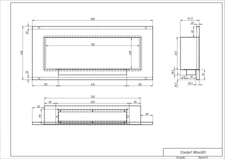
Габариты
Технические
Для покупки товара в нашем интернет-магазине выберите понравившийся товар и добавьте его в корзину. Далее перейдите в Корзину и нажмите на «Оформить заказ» или «Быстрый заказ».
Когда оформляете быстрый заказ, напишите ФИО, телефон и e-mail. Вам перезвонит менеджер и уточнит условия заказа. По результатам разговора вам придет подтверждение оформления товара на почту или через СМС. Теперь останется только ждать доставки и радоваться новой покупке.
Оформление заказа в стандартном режиме выглядит следующим образом. Заполняете полностью форму по последовательным этапам: адрес, способ доставки, оплаты, данные о себе. Советуем в комментарии к заказу написать информацию, которая поможет курьеру вас найти. Нажмите кнопку «Оформить заказ».
Оплачивайте покупки удобным способом. В интернет-магазине доступно 3 варианта оплаты:
- Наличные при самовывозе или доставке курьером. Специалист свяжется с вами в день доставки, чтобы уточнить время и заранее подготовить сдачу с любой купюры. Вы подписываете товаросопроводительные документы, вносите денежные средства, получаете товар и чек.
- Безналичный расчет при самовывозе или оформлении в интернет-магазине: карты Visa и MasterCard. Чтобы оплатить покупку, система перенаправит вас на сервер системы ASSIST. Здесь нужно ввести номер карты, срок действия и имя держателя.
- Электронные системы при онлайн-заказе: PayPal, WebMoney и Яндекс.Деньги. Для совершения покупки система перенаправит вас на страницу платежного сервиса. Здесь необходимо заполнить форму по инструкции.
Экономьте время на получении заказа. В интернет-магазине доступно 3 варианта доставки:
- Курьерская доставка работает с 9.00 до 19.00. Когда товар поступит на склад, курьерская служба свяжется для уточнения деталей. Специалист предложит выбрать удобное время доставки и уточнит адрес. Осмотрите упаковку на целостность и соответствие указанной комплектации.
- Самовывоз из магазина или склада. Когда заказ поступит на склад, Вам придет уведомление. Мы свяжемся с Вами, уточним время в которое можете приехать.
- Транспортной компанией. Доставим товар в любой город до двери. Заказ можно оплатить при получении.
Самовывоз - 1-2 дня
Доставка курьером - 2-3 дня
Ростов-на-Дону:
Самовывоз - 3-4 дня
Доставка курьером - 4-5 дней
Самовывоз - 4-5 дней
Доставка курьером - 6-7 дней
Воронеж:
Самовывоз - 2 дня
Доставка курьером - 2-3 дня
Самовывоз - 6-7 дней
Доставка курьером -8-9дней
Москва:
Самовывоз - Сегодня
Доставка курьером - 1-2 дня








